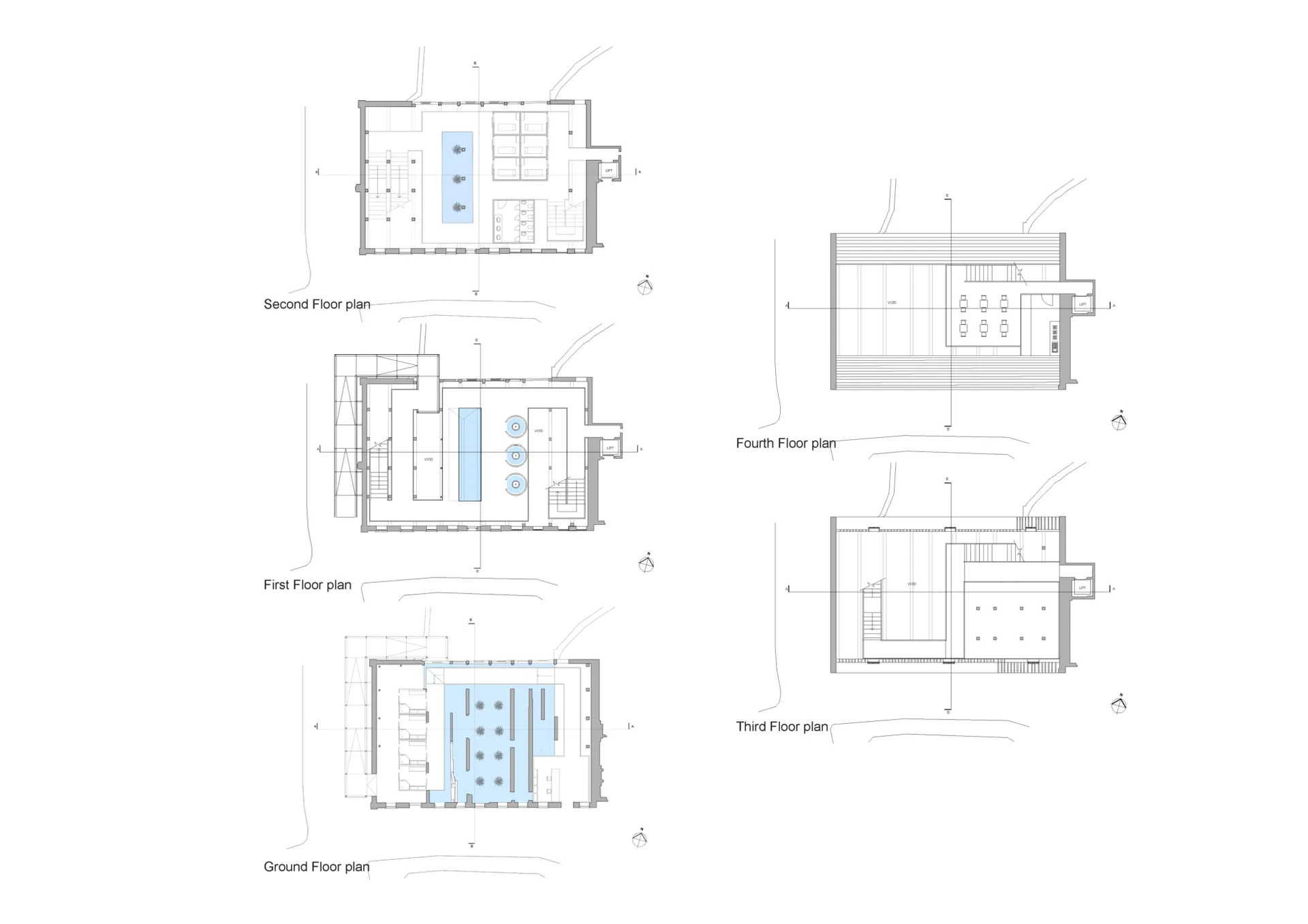
The project aims to revitalize the surrounding community and industrial heritage by reusing the House mill, a major Grade 1 building in the London Borough of Newham, as a spa. The Mill house Spa is based on the sustainable economic cycle of water through a natural water purification system using hydroponic plants. Contaminated water from the River Leer is purified through a hydroponic regeneration pond, used for the spa, and then returned to the Lea River. In this process, people can experience the sustainable economic cycle of water with their eyes and feel it with their bodies through the spa. It is planned to maximize the role of the water space through the harmony of the old historic building and the new space so that people can experience the essential nature of water.